产品特点
产品参数
|
型号 性能 |
CFZ-80ST |
||
|
除湿机组整机性能
|
除湿量 |
kg/h |
77 |
制冷量 |
kw |
135 |
|
防爆等级 |
dIIBT4 |
||
噪音 |
69dB |
||
风量 |
m3/h |
25000 |
|
机外静压 |
Pa |
2800 |
|
电源 |
3/N/PE AC 380V 50Hz |
||
输入功率 |
kW |
69 |
|
压缩机 |
类型 |
全封闭旋转压缩机 |
|
数量 |
2 |
||
制冷剂 |
使用工质 |
R410A |
|
控制形式 |
膨胀阀 |
||
蒸发器形式 |
高效紫铜管套铝翅片 |
||
冷凝器形式 |
高效紫铜管套铝翅片 |
||
风机 |
类型 |
高效离心风机 |
|
过滤器 |
类型 |
双层尼龙过滤网 |
|
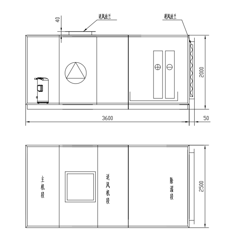
外形 |
长(mm) |
3600 |
|
宽(mm) |
2500 |
||
高(mm) |
2000 |
||
重量 |
kg |
2050 |
|
产品详情




